EN
EN
PT
Work
Projects
Prev
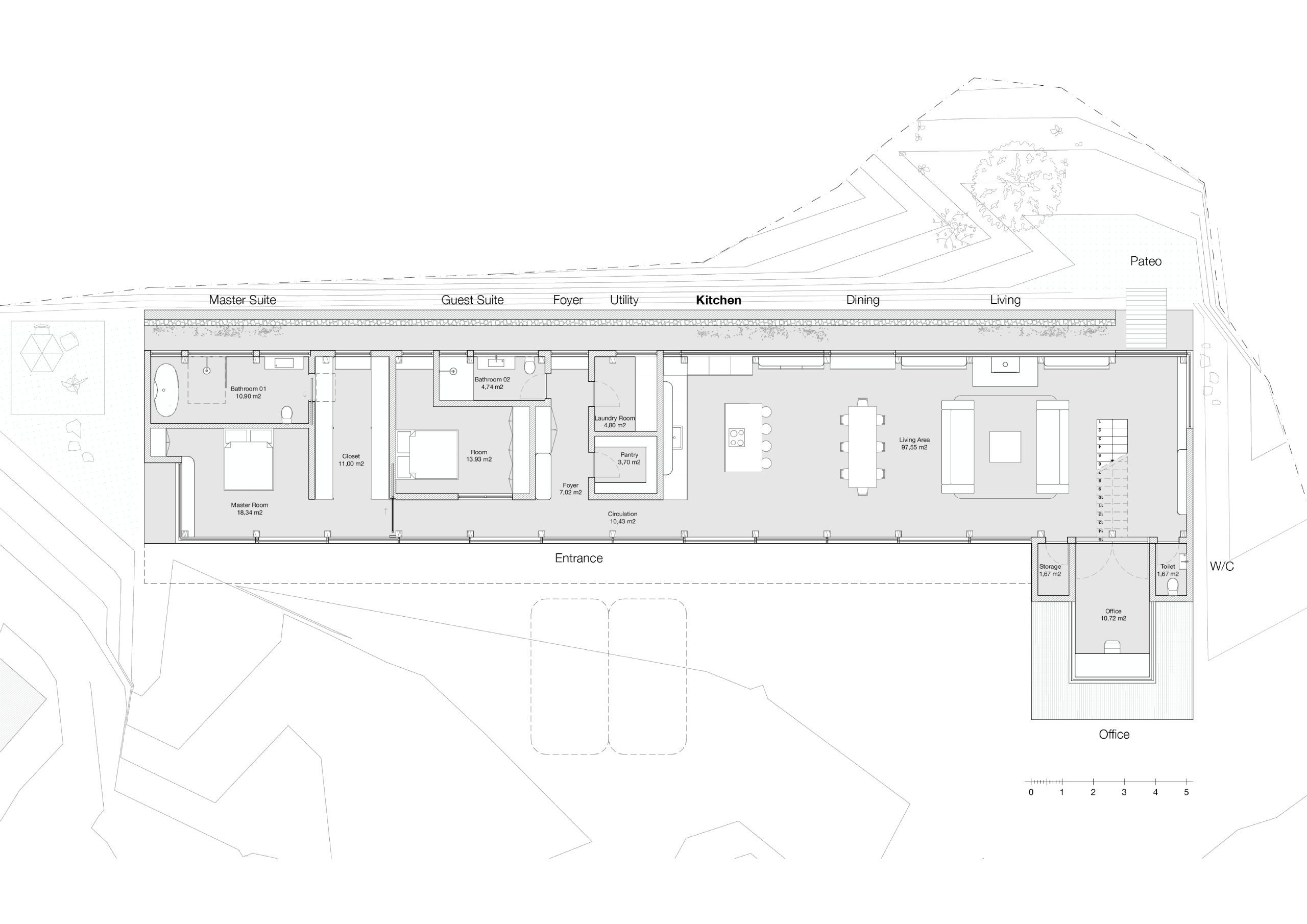
Baia das Canas
Location
: Pico Island | Azores
Structure
: Wood Prefab
Use
: Vacation home
Work
Projects
Prev
Work
Press
About
Contact
Work
Press
About
Contact
Services
Services
EN
EN
PT
Baia das Canas
Location
: Pico Island | Azores
Structure
: Wood Prefab
Use
: Vacation home